Dom w Nasławicach

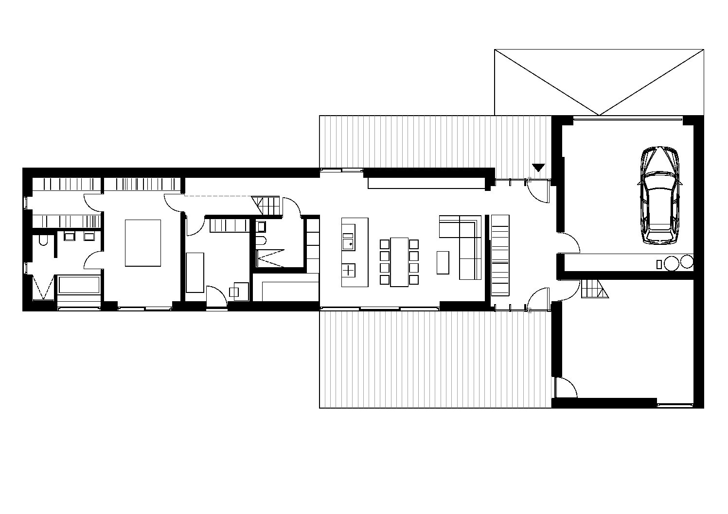
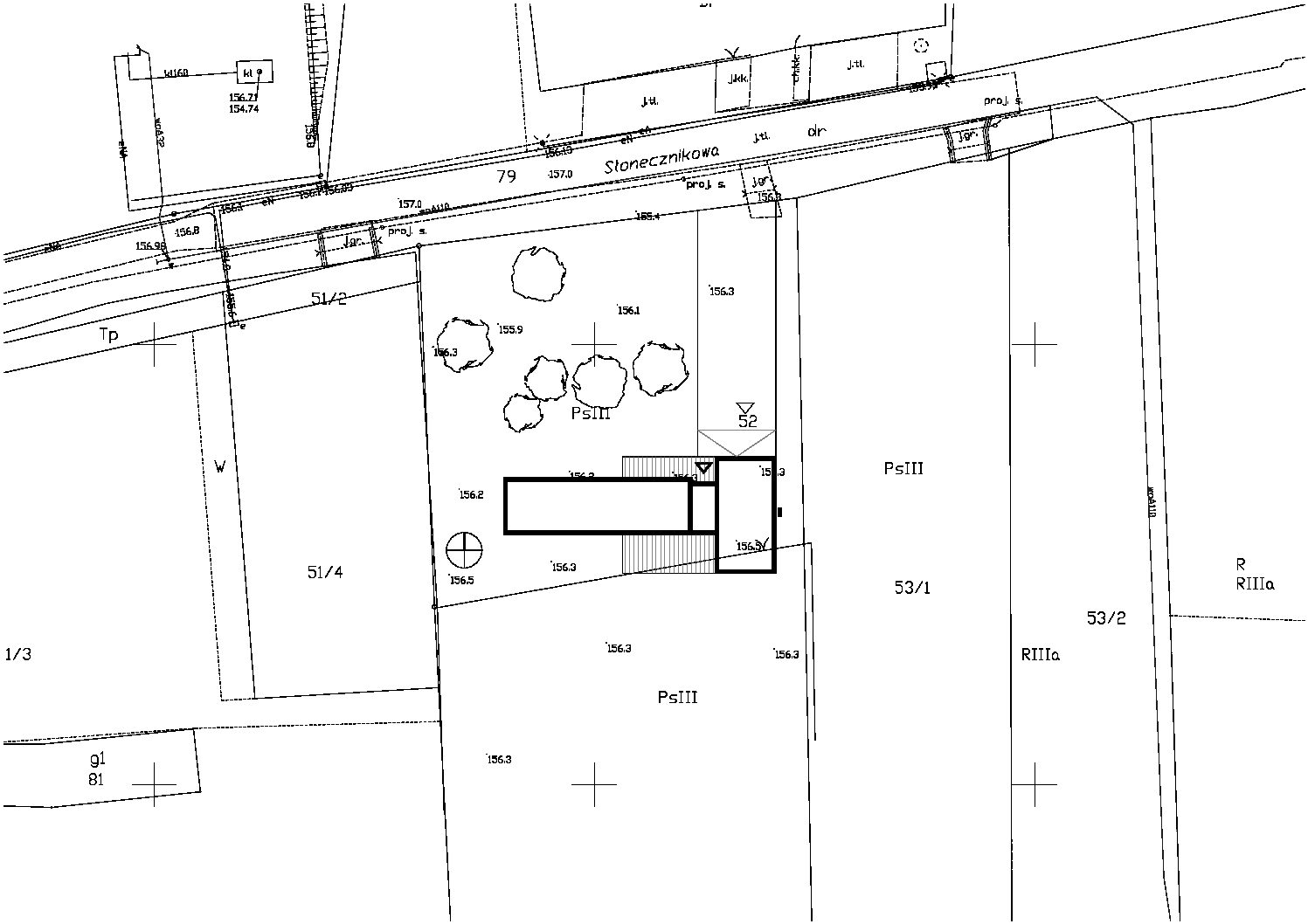
Dom z pracownią artystyczną. Budynek został oddalony od drogi ze względu na istniejące drzewa. Jego forma oddziela przestrzeń prywatną od publicznej. Pracownia artysty to wnętrze o zróżnicowanej formie, w połowie jest to mocno doświetlona dwukondygnacyjna przestrzeń a częściowo zaciemniona antresola przeznaczona do pracy przy komputerach.

powierzchnia użytkowa: 275 m²
architektura: Marcin Klich, Łukasz Piasta
konstrukcja: Zbigniew Karczewski
instalacje sanitarne: Anna Szała
projekt: 2021